Appartamento
Descrizione
SPLENDIDO APPARTAMENTO RECENTE COSTRUZIONE AMPIA TERRAZZA
Acilia, Via di Monte Cugno, all’interno del complesso residenziale più ricercato della zona con ampi spazi verdi condominiali, area fitness, area lettura e baby park, siamo lieti di annunciarvi la commercializzazione di uno splendido appartamento di recentissima costruzione caratterizzato dalla doppia esposizione con ampi terrazzi ed una suggestiva vista panoramica.
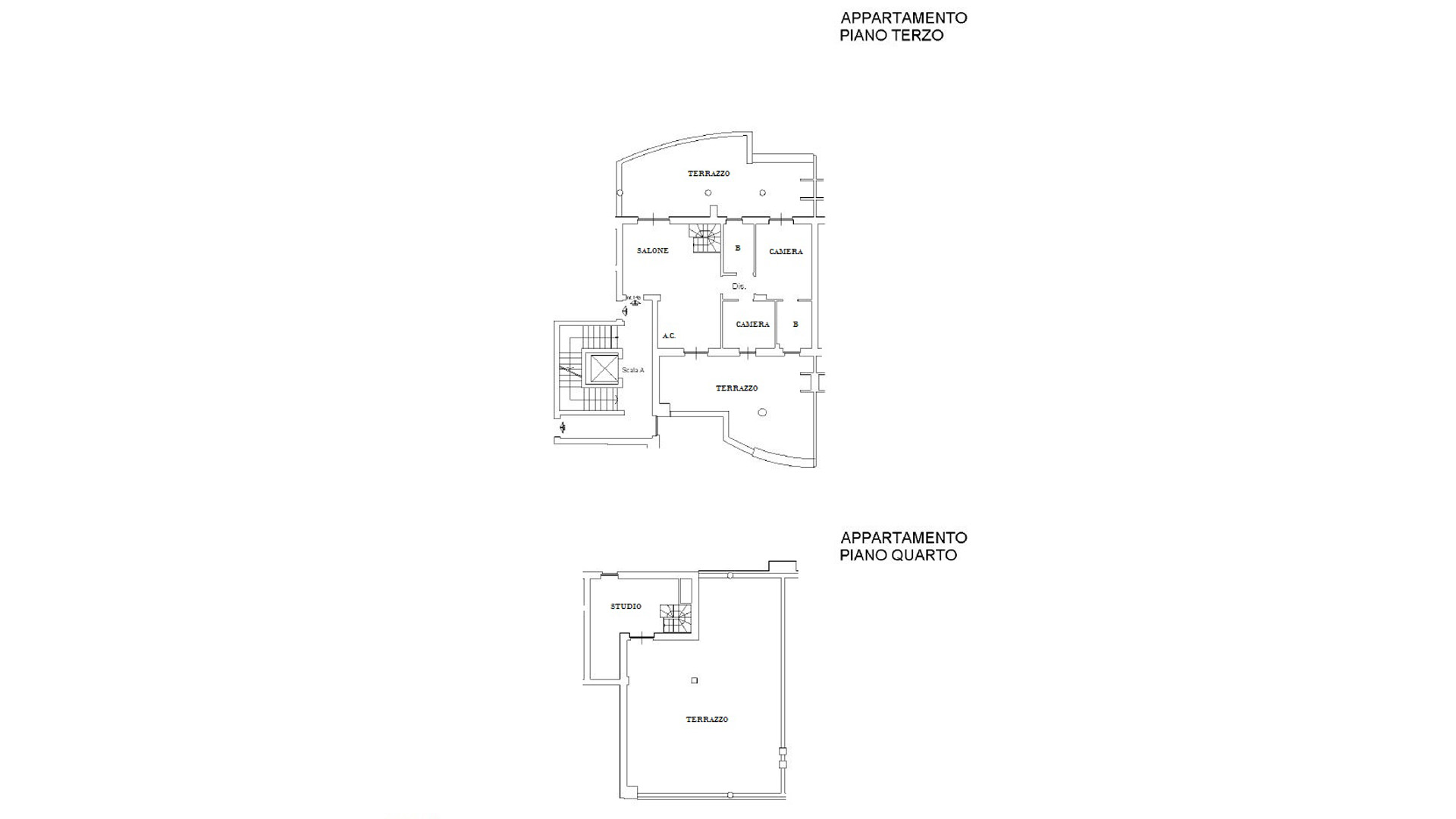
La nostra proposta immobiliare, completamente arredata con mobilio dei più importanti marchi italiani, si compone al suo interno da un ampio salone con comoda e funzionale cucina a vista, disimpegno di accesso alla zona notte, due camere da letto, doppi servizi, entrambi finestrati e due splendidi terrazzi.
Al piano superiore, raggiungibile da una comoda scala interna, si sviluppa una spaziosa soffitta di 2.40mt di altezza con suggestivo terrazzo solarium dal quale si può godere di una spettacolare vista panoramica.
Completano la proprietà un posto auto coperto, dove è possibile posteggiare fino a due autovetture, ed una cantina.
Classe Energetica: C
Immobile in 3D
Esplora il progetto in 3D e scopri i suoi dettagli architettonici.
Mappa
















