Appartamento
Descrizione
APPARTAMENTO A POCHI MT DAL MARE
Appartamento con Vista Mare – Zona Lido delle Sirene, Anzio.
A soli 400 metri dal mare e dallo stabilimento "La Scialuppa", proponiamo in vendita un luminoso appartamento posto al primo piano, in una delle zone più tranquille.
La proprietà si trova a pochi metri dai principali servizi e a pochi chilometri dal porto di Anzio, perfetta sia come abitazione principale che come casa vacanze.
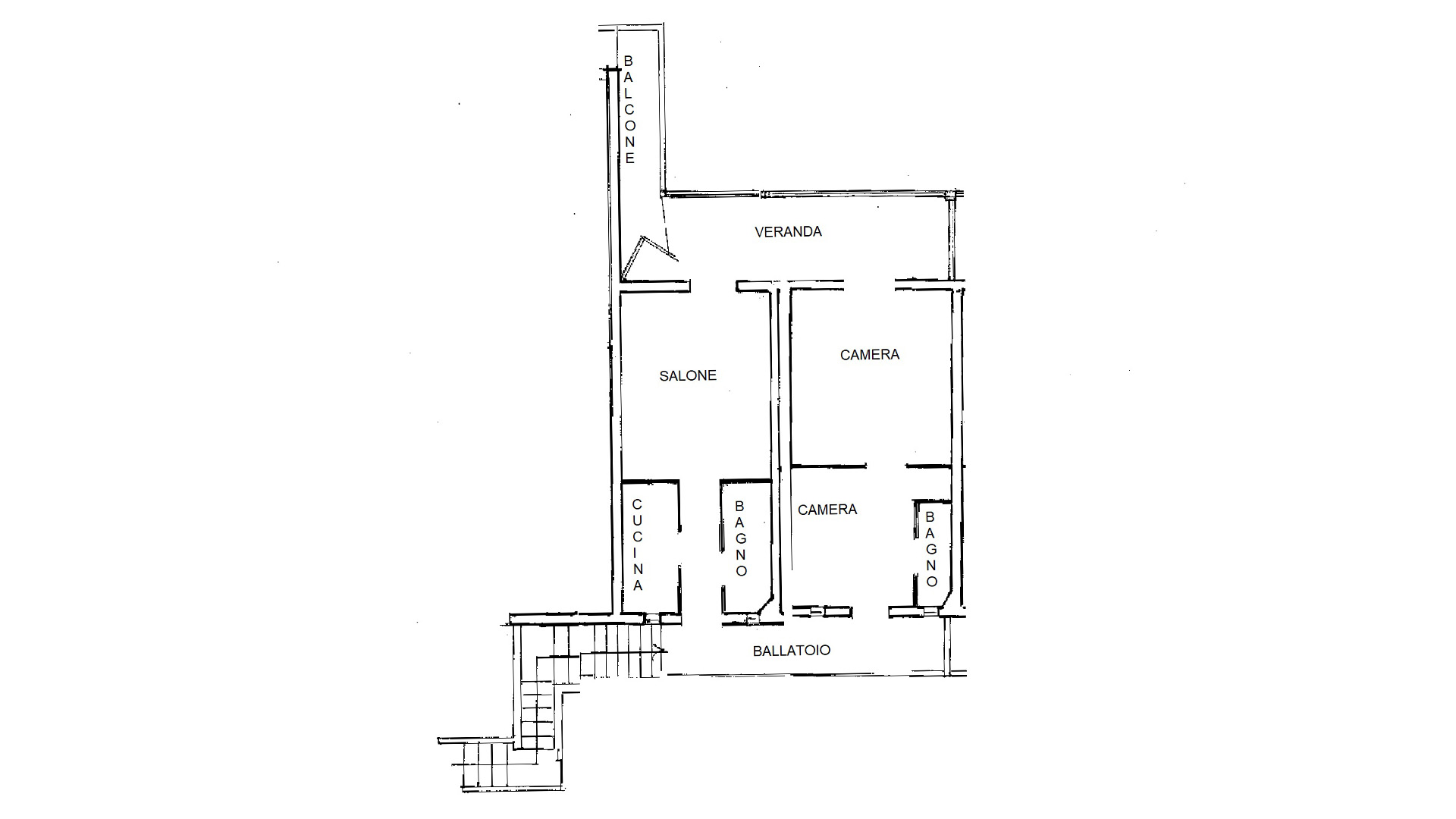
All’interno, l’appartamento accoglie con un ingresso riservato su ballatoio di 8 mq, che conduce a un ambiente curato, Il salone ampio e luminoso è il cuore della casa, ideale per rilassarsi o accogliere ospiti, collegato a una veranda panoramica chiusa da eleganti vetrate apribili, da cui godere ogni giorno di una splendida vista mare, la cucina separata, funzionale e ben distribuita, è perfetta per momenti conviviali, la zona notte offre due camere da letto spaziose, entrambe ben illuminate e silenziose, ideali per il riposo e la privacy.
Completano la proprietà due bagni comodi.
Il tutto è impreziosito da un balcone, perfetti per godersi la brezza marina e il sole del litorale.
L'appartamento è ben tenuto, gode di ottima esposizione e si presta a diverse soluzioni abitative.
Non lasciarti sfuggire l’occasione di vivere o investire a pochi passi dalla spiaggia!
Classe Energetica: G
Immobile in 3D
Esplora il progetto in 3D e scopri i suoi dettagli architettonici.
Mappa


















