Attico
Descrizione
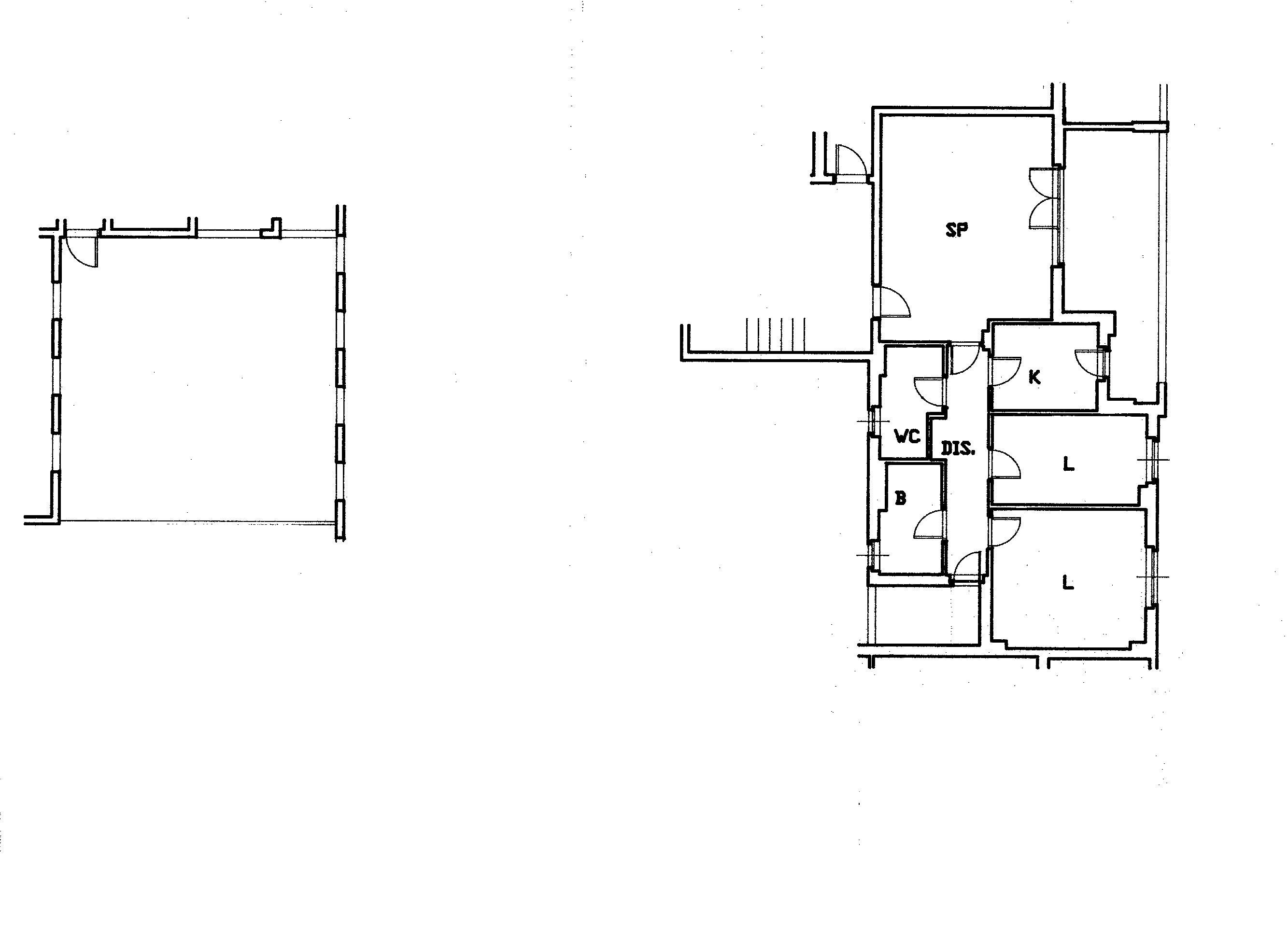
ATTICO CON BOX E TERRAZZO VIA TESAURO
Nella zona di Cinquina e più precisamente - in Via Emanuele Tesauro all'interno di una palazzina in cortina di soli 3 piani sito nel piano di zona con diritto di superficie ma con PRATICA AFFRANCAZIONE GIA’ ESPLETATA, proponiamo la vendita di un appartamento posto all’ultimo piano in buone condizioni interne. Esso è composto da un salone con accesso al balcone, cucina abitabile, un disimpegno che conduce alla zona notte dove troviamo una camere da letto matrimoniale e una cameretta ed con doppi servizi entrambi finestrati. Completa la proprietà un box auto singolo, un posto auto scoperto e una cantina. L'immobile risulta essere particolarmente luminoso grazie alla doppia esposizione, oltre ad essere dotato di impianti di climatizzazione caldo/freddo, di porta blindata, infissi in doppio vetro in pvc e di un armadio a muro per vari usi.
La nostra proposta immobiliare risulta essere anche interessante in virtù della posizione strategica che è garantita dal fatto che essa si trova in un quartiere sia di recente costruzione e sia ancora in fase di espansione. L'immobile é ideale per chi desidera vivere nel verde del Parco della Marcigliana ma con i servizi cittadini a poca distanza.
I negozi di prima necessità si possono raggiungere a piedi, mentre l'ingresso del G. R. A. dista solo a 1,5 km e il centro commerciale Porta di Roma è a soli 3 km di distanza.
Classe Energetica: G
Immobile in 3D
Esplora il progetto in 3D e scopri i suoi dettagli architettonici.
Mappa























