Appartamento
Descrizione
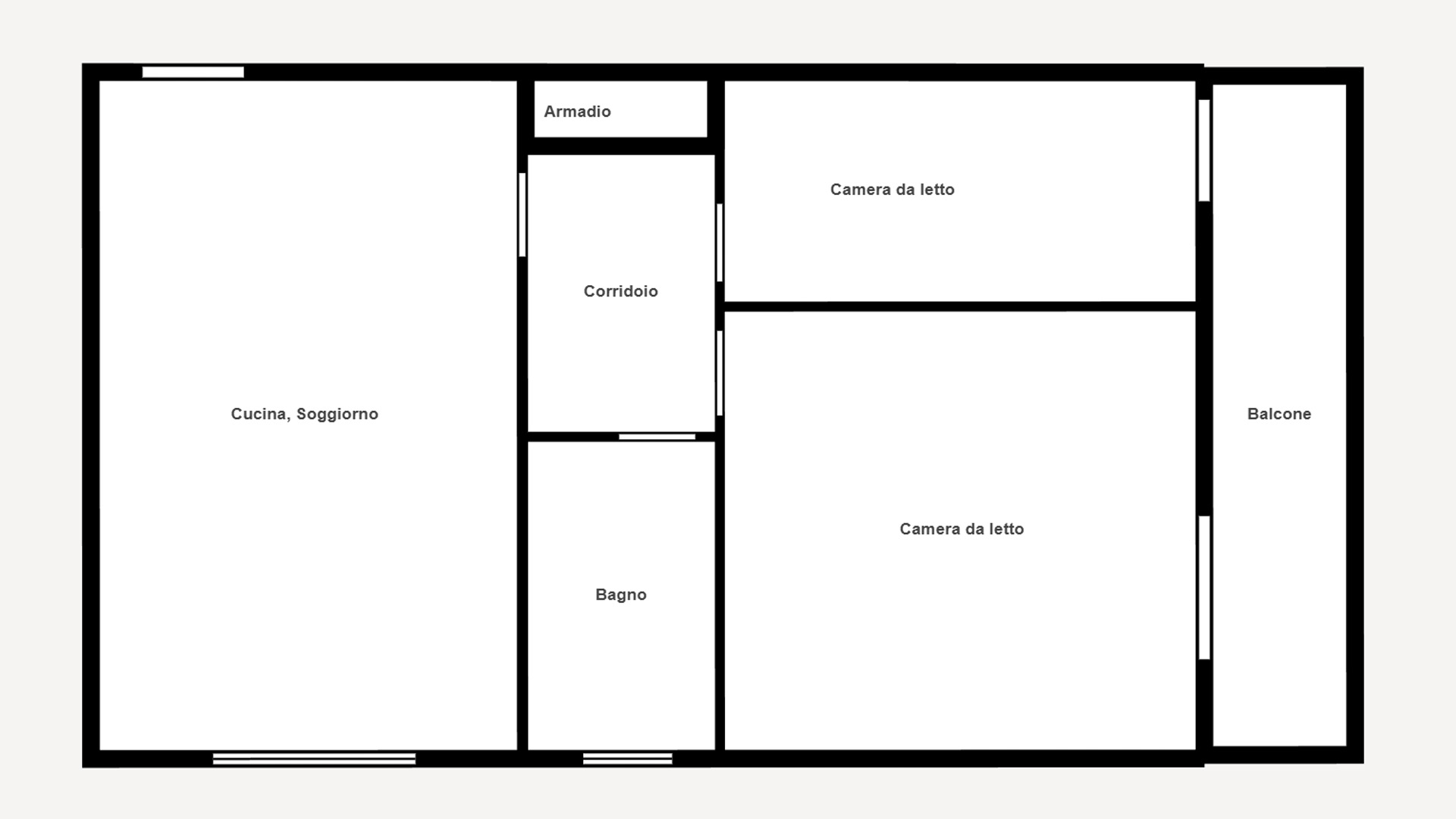
APPARTAMENTO TRILOCALE CON BALCONE
Colli Portuensi, Viale dei Colli Portuensi, nel cuore dell’omonimo quartiere, ricco di servizi, negozi, aree verdi e collegamenti, siamo orgogliosi di annunciarvi la vendita di un appartamento dalle linee moderne e dagli spazi sapientemente distribuiti, posto al terzo piano di una palazzina residenziale in cortina curata e ben servita, con ampi spazi condominiali, soluzione ideale per chi è alla ricerca di comfort, stile e di un’ottima vivibilità quotidiana.
L’ingresso apre su un accogliente soggiorno con cucina a vista, un ambiente unico e luminoso perfetto per la convivialità e per sfruttare al meglio gli spazi.
Un ampio disimpegno conduce alla zona notte, valorizzato da pratici armadi a muro perfettamente integrati.
La zona notte è composta da un’ampia camera da letto padronale e da una camera versatile, ideale come studio o stanza per gli ospiti
Il bagno, finestrato e di generose dimensioni, è dotato di una moderna doccia. Completa la proprietà un balcone vivibile, perfetto per godersi momenti di relax.
Grazie alla doppia esposizione angolare a sud/ovest, l’appartamento gode di grande luminosità durante tutto l’arco della giornata, garantendo ambienti ariosi e soleggiati.
Classe Energetica: G
Immobile in 3D
Esplora il progetto in 3D e scopri i suoi dettagli architettonici.
Mappa
















