Appartamento
€
165000
Appartamento
88
mq
Trilocale
1
bagni
Tipo di edilizia:
Libera
Tipo di contratto:
Vendita
Descrizione
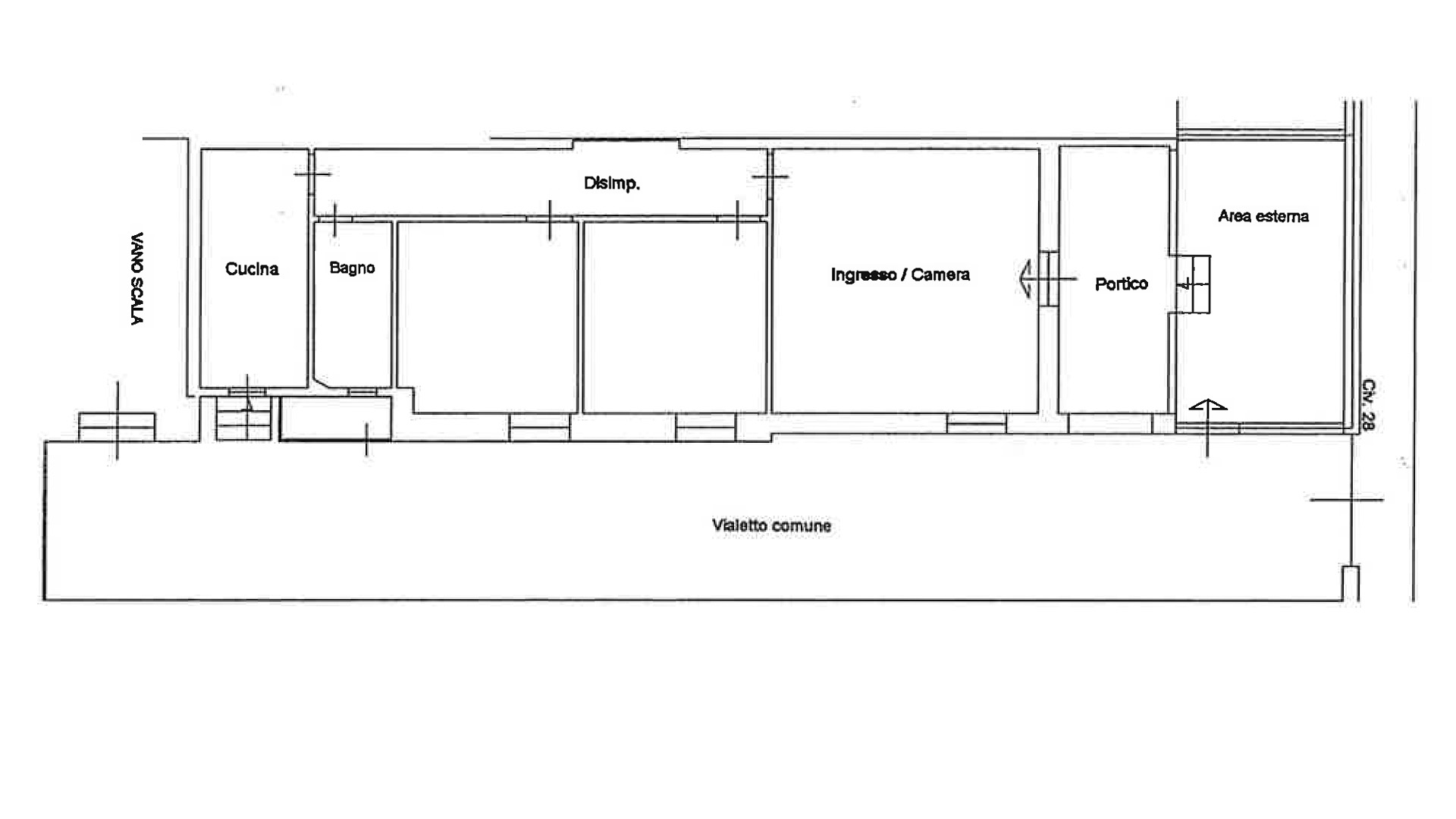
SPLENDIDO APPARTAMENTO CON GIARDINO
Ladispoli/Via Torino adiacente a tutti i principali servizi di zona e vicina al mare proponiamo la vendita di un appartamento composto da salone cucina due camere da letto servizio portico e giardino.
L’appartamento è dotato di riscaldamento autonomo ed è ubicato in zona servita da supermercati negozi farmacie ed ottimamente collegata grazie alla vicinanza con l’aeroporto di Fiumicino alla Via Aurelia ed all’autostrada Roma/Civitavecchia.
Classe Energetica: G
Immobile in 3D
Esplora il progetto in 3D e scopri i suoi dettagli architettonici.
esplora l'immobile in 3d
Mappa

This is some text inside of a div block.
This is some text inside of a div block.
41.95364190136638
12.074009253413571
Contattaci
Contattaci
Contattaci
Contattaci
Contattaci
Contattaci
Agenzia Eur
Chiamaci al numero
+39 06 5033033
Orario di apertura
Lun - Ven: 9.00 - 13.00 / 14.00 - 19.00 Sab: 9.00 - 13.00
Altre soluzioni simili nella zona













