Attico
Descrizione
ATTICO E SUPERATTICO – TORRINO MEZZOCAMMINO
Via Alberto Giolitti, proponiamo un prestigioso attico e superattico situato al 4° e 5° piano di un elegante comprensorio, a pochi passi da tutte le principali attività commerciali del quartiere.
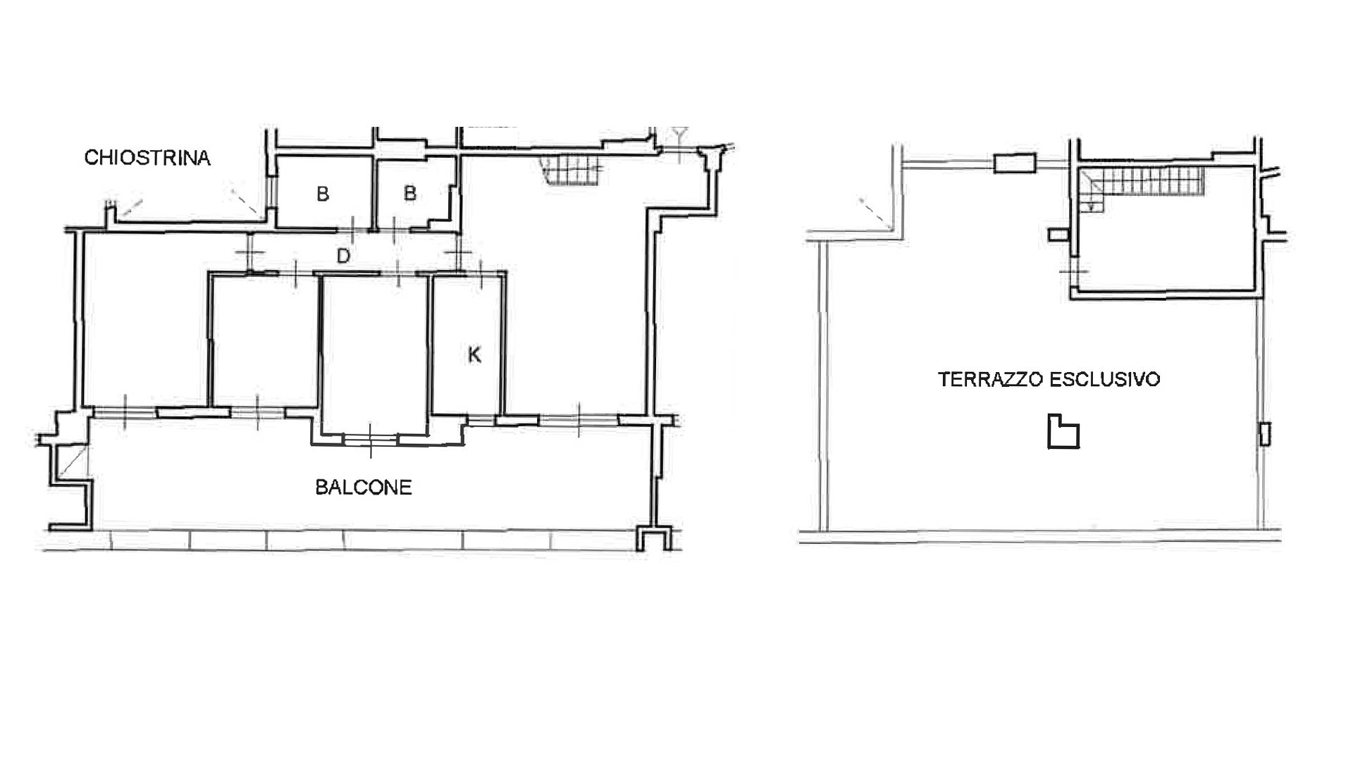
L’appartamento, finemente rifinito, è composto da ampio soggiorno, cucina, disimpegno, quattro camere da letto, doppi servizi.
Al piano attico è presente un terrazzo parzialmente verandato, ideale da utilizzare come zona living in tutte le stagioni.
Al piano superattico troviamo un secondo, ampio terrazzo con affaccio libero e panoramico, perfetto per momenti di relax e convivialità.
Completa la proprietà un comodo box auto doppio.
Dotazioni dell’appartamento: porta blindata, infissi in legno con doppio vetro, aria condizionata, impianto di allarme e riscaldamento autonomo.
Il comprensorio offre inoltre palestra esclusiva per i condomini e area giochi attrezzata per bambini.
Scegliere il Torrino Mezzocammino significa vivere in un quartiere moderno e curato, caratterizzato da ampi spazi verdi e piste ciclabili, strade ampie, senza traffico né problemi di parcheggio, servizi e infrastrutture di alto livello.
Ottimi collegamenti: vicinanza al GRA, linea ATAC 787 che collega rapidamente alla fermata Magliana della Metro B, prossima apertura della nuova fermata Metro di Mezzocammino, a pochi passi dall’immobile.
Classe Energetica: B
Immobile in 3D
Esplora il progetto in 3D e scopri i suoi dettagli architettonici.
Mappa


























