Appartamento
Descrizione
SAN PAOLO - LUMINOSO TRILOCALE CON BALCONI
Nel quartiere San Paolo, in Via Gabriello Chiabrera, a pochi passi dalla metro linea B – fermata San Paolo, proponiamo la locazione di un ampio trilocale posto al secondo piano di uno stabile di otto piani.
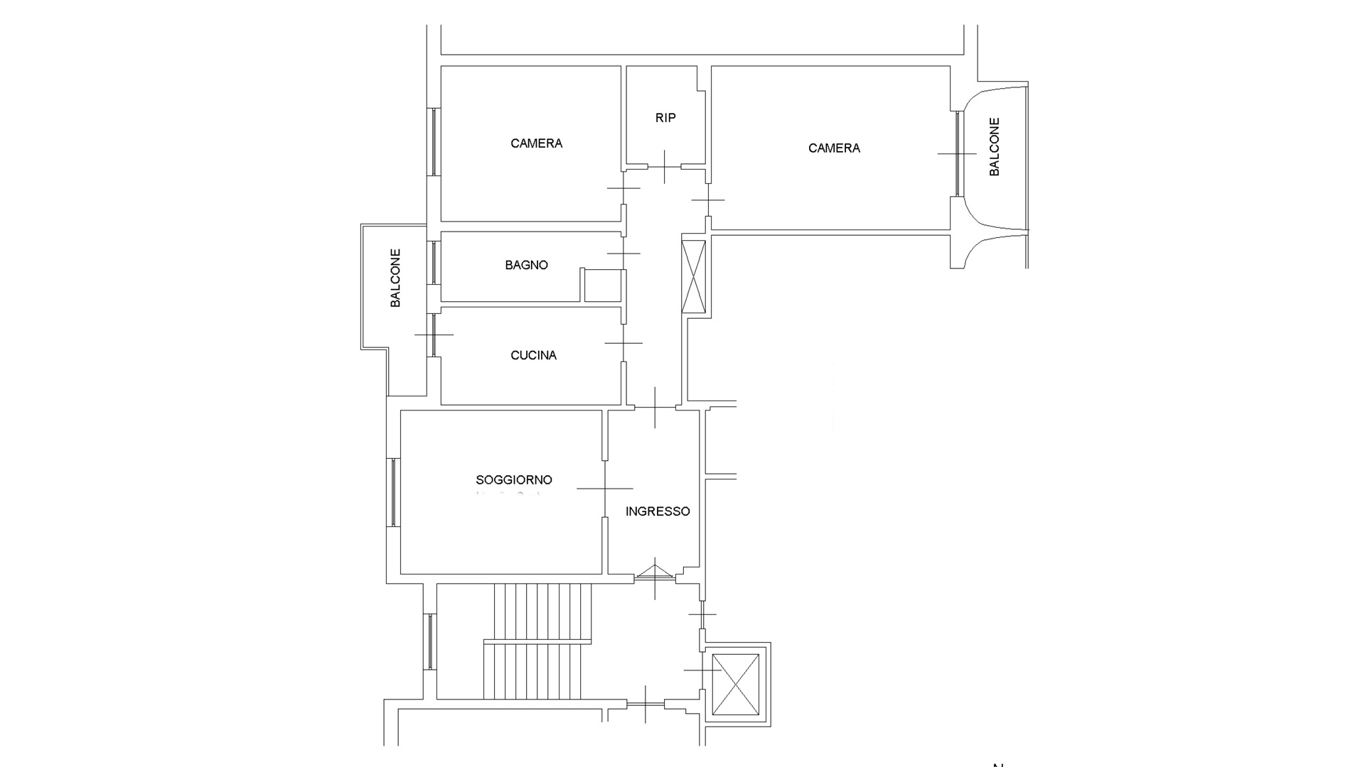
L’appartamento è composto da ingresso con disimpegno, spazioso salone, cucina abitabile, due ampie camere da letto, corridoio con comode armadiature, ripostiglio, servizio, balconi.
L’immobile si presenta luminoso grazie all’affaccio aperto ed è parzialmente arredato, completo di elettrodomestici.
La posizione è particolarmente strategica, con la presenza di tutti i principali servizi sotto casa: attività commerciali, supermercati, cinema e servizi di ogni genere.
Classe Energetica: G
Immobile in 3D
Esplora il progetto in 3D e scopri i suoi dettagli architettonici.
Mappa














